Étiquette : architecture classique
-

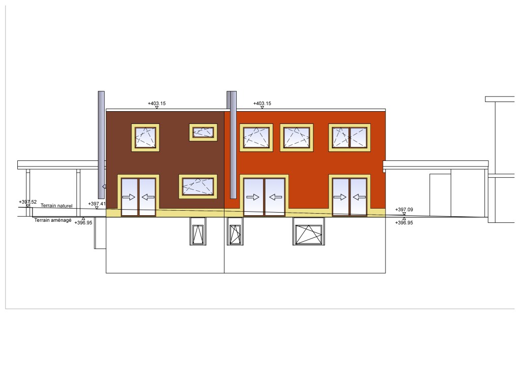
Construction de deux maisons à Borex
Aujourd’hui, je vous présente un de nos derniers projets: la construction de deux maisons à Borex, dans le Canton de Vaud. Vous avez un terrain dans le Canton de Vaud et vous voulez construire? Jetez un œil à nos offres pour les projets de villas et les promotions immobilières, et contactez-nous au 079 525 71…
-

Promotions immobilières (Fribourg, Jura, Neuchâtel, Vaud, Valais): projet jusqu’au permis de construire, pour 20’000 CHF HT.
Il y a quelques temps, je vous avais présenté notre offre pour les promotions immobilières à Genève. Il est maintenant temps d’étendre notre offre aux autres Cantons. Étant donné que les procédures dans les autres Cantons sont plus simples, nous pouvons vous proposer un prix plus attractif, à savoir: L’étude du projet, des études préliminaires…
-

Offre spéciale pour les villas et tiny house: projet jusqu’au permis de construire, pour 10’000 CHF HT.
Si vous êtes par ici, vous avez certainement vu nos projets de maison. Ou peut-être, vous êtes arrivé ici par le biais de nos groupes facebook, notamment celui sur les Tiny House en Suisse Romande. D’une manière ou d’une autre, vous êtes arrivés par ici, et vous avez décidé de construire une votre nouvelle maison,…
-

Les maisons open-source: NATUR (106 m2, 530’000 CHF HT)
La ville polonaise d’Otwock a mis a disposition sur son site des plans de maisons open-source, pour que les habitants désireux de construire leur maison puissent trouver toutes les ressources nécessaires pour mener à bien leur projet. Les maisons proposées ont l’air sympa: j’ai profité pour les étudier, et vérifier leur faisabilité en Suisse. Celle-ci…
-

Les maisons open-source: MODERN (108 m2, 550’000 CHF HT)
La ville polonaise d’Otwock a mis a disposition sur son site des plans de maisons open-source, pour que les habitants désireux de construire leur maison puissent trouver toutes les ressources nécessaires pour mener à bien leur projet. Les maisons proposées ont l’air sympa: j’ai profité pour les étudier, et vérifier leur faisabilité en Suisse. Celle-ci…
-

Les maisons open-source: KLASYK (108 m2, 550’000 CHF HT)
La ville polonaise d’Otwock a mis a disposition sur son site des plans de maisons open-source, pour que les habitants désireux de construire leur maison puissent trouver toutes les ressources nécessaires pour mener à bien leur projet. Les maisons proposées ont l’air sympa: j’ai profité pour les étudier, et vérifier leur faisabilité en Suisse. Celle-ci…
-

Genève, promotions immobilières en zone 5: projet jusqu’au permis de construire, pour 30’000 CHF HT.
Ceux qui nous lisent depuis longtemps ont suivi la saga de l’Art.59 al.4 LCI. On a assisté à un moratoire sur cet article, puis à une reprise des constructions, et à plusieurs essais de règlements pour garantir une qualité des projets architecturaux, avec notamment l’obligation du maintien d’une surface en pleine terre. Finalement, toutes ces…
-

Where did Ancient Romans park their horse?
I’ve lived in Rome for almost 20 years. My school was in front of the Colosseum, my first job in front of St. Peter’s Basilica, and my house was built on the exact spot where the emperor Nero died. So, you can say I know the city quite a lot. And today I received this…
-

Manifesto for a left-wing classicism.
In 2020, the Trump administration released the « Make Federal Buildings Beautiful Again » decree where it imposes a classicist style for all new public buildings in the United States. In Italy, Right-wing governments tried a similar approach a few years ago, with a proposal to tear down some tower blocks of the 1970s and 1980s and…
-

Construction du hammam de Tachkent (architecte: Andrey Kosinsky)
Grâce à l’excellent blog « memoire2Ville« , je viens de découvrir l’histoire du hammam de Tachkent. Sur cette construction, toute la documentation est en russe, donc il est intéressant de faire une traduction en français. L’article original en russe est disponible par ici. Malheureusement, ces bains ont été démolis en 2010. … une histoire très intéressante est…
-

Les maisons féeriques.
Vous voulez construire une maison féerique? Contactez-nous!+41 79 525 71 35 Ces derniers jours j’ai resortis les projets d’écovillages et de maisons écologiques sur lesquels j’avais travaillé il y a quelques mois, et tout d’un coup j’ai observé un regain d’intérêt chez mes lecteurs pour ces projets. Il y a notemment des maisons qui reviennent…
-

Ban cars and build traditional (English version)
I just discovered Oskar Stålberg‘s excellent blog, with lots of imaginary cities, drawn from common objects. A particularly interesting article on his blog is the game « Brick Block » where you can build a piece of town with two mouse strokes (left button to add a block, right button to break a block) What is interesting…
-

Manifeste pour un classicisme de gauche.
Vous voulez construire une maison à l’architecture traditionnelle? Contactez-nous!+41 79 525 71 35+41 78 638 09 18 Début 2020, l’administration Trump avait sorti le décret « Make Federal Buildings Beautiful Again » où elle avait imposé un style classiciste pour toutes nouvelles constructions publiques aux États-Unis. Une approche similaire avait été tenté en Italie il y a…
-

Ban cars and build traditional
Je viens de découvrir l’excellent blog de Oskar Stålberg, avec plein d’images de villes imaginaires, destinées à partir d’objets communs. Un article particulèrement intéressant sur son blog est le jeu « Brick Block » où on peut construire un morceau de ville avec deux coups de souris (touche gauche pour ajouter un bloc, touche droite pour casser…
-

Reconstruisons le Jeu de l’Arc!
Une page noire pour la préservation du patrimoine à Genève: la maison du Noble Exercice de l’Arc, un bijou du début du 20ème siècle, vient de tomber sous les coups des pelleteuses avec son jardin plin d’arbres centenaires. L’ensemble sera remplacé d’ici quelques mois par une barre d’immeubles. Le combat pour la sauvegarde du patrimoine…
-

Un chalet sans bardage bois est-il toujours un chalet? (Projet de deux chalets à Monthey)
Vous voulez construire en Valais? Contactez-nous au 079 525 71 35. Récemment, nous avous fait un projet pour deux chalets à Monthey. Au moment de choisir les matériaux de construction, le client a choisi de ne pas mettre de bardage bois, préférant y mettre à sa place un plus simple crépi. Cela ne nous a…
-

Quelle architecture pour les années 2020?
Dans 6 mois, nous serons en 2020. Une décennie se termine et une nouvelle décennie va commencer. Les chiffres rondes sont toujours une occasion pour faire le point sur les tendances actuelles, et commencer à esquisser les idées pour les années à venir. Les années 2010 ont vécu sous le signe du minimalisme. Après l’exubérance…
-

Quelques exemples d’architecture organique.
Voulez-vous construire une maison organique? Contactez-nous! +41 79 525 71 35 +41 78 638 09 18 Depuis que j’ai publié les annones pour des projets de maison écologique et de Tiny House, j’ai reçu pas mal de demande de personnes qui voulaient un projet d’architecture organique. Donc, c’est la bonne occasion pour resortir mes exemples préférés…
-

Pour des constructions plus belles, reprenons en main l’architecture!
Cet article est paru sur le dernier numéro (mars 2019) du journal « Pic Vert ». Ces derniers temps, les nouvelles constructions ont été au centre du débat, avec notamment : des pétitions pour le maintien d’anciennes bâtisses, des référendums sur des nouveaux PLQ et, plus récemment, un référendum sur la gestion des zones agricoles. Dans ces…
-

Décoration et activisme
Une partie de ma famille est originaire d’Iran. Et j’ai profité des dernières réunions familiales pour en savoir un peu plus sur ce pays. Dans la culture populaire européenne, l’Iran est une dictature sanguinaire, un pays où on s’amuse à torturer les gens pour tout et pour rien. Et toutes les représentations de l’Iran sur…
-

Décoration et technologie
Il y a quelques semaines, je vous avais fait découvrir les nouveautés architecturales de différents pays. On avait exploré la Russie avec Dahir Insaat, la Bolivie avec Freddy Mamani et la Corée du Nord avec Mansudae. Tous ces différents exemples ont deux points en commun: l’abondance de décorations une certaine indifférence au contexte social du lieu…
-

Ludwig Mies van der Rohe, ou la dystopie bureaucratique.
Il y a quelques mois je vous avis parlé d’un des initiateurs de la laideur urbaine, le mythique architecte Le Corbusier. Aujourd’hui, il est venu le moment de s’attaquer à un autre mythe de l’architecture du XXème siècle, Ludwig Mies van der Rohe. L’archétype de l’architecture de Mies van der Rohe est l’immeuble de bureaux.…
-

Densification à Genève: notre interview avec Pic-Vert – Assprop.
Pic-Vert – Assprop nous a interviewé concernant les projets de densification à Genève. Ci-dessous, le résultat de notre entretien. Vous avez un terrain en zone villa à Genève, et vous voulez vous lancer dans un projet de densification? Contactez-nous au 079 525 71 35.
-

Mansudae: l’art nord-coréen à travers le monde.
Il y a quelques temps, je vous avais parlé des nouvelles tendances de l’art et de l’architecture en dehors du monde occidental. Après Dahir Insaat en Russie et en Turquie, et Freddy Mamani en Bolivie, aujourd’hui je vous amène en Corée du Nord, avec l’atelier Mansudae. Une des caractéristiques de la Corée du Nord est…
-

Freddy Mamani, ou la nouvelle architecture bolivienne
Depuis un moment, je vois une dynamique qui se met en place dans le monde de la construction (et dans la société en général): d’un côté, un monde académique qui devient de plus en plus auto-référentiel et détaché du monde extérieur, et qui essaie de s’imposer partout et de se rendre indispensable par tous les moyens…
-

Dahir Insaat. La technologie sans la modernité.
Depuis quelques temps, je vois passer de plus en plus de vidéos qui montrent une société futuriste, tous venant de la même entreprise: Dahir Insaat. On y voit des bus et des camions de pompiers capables de voler sur le trafic: Des avions-trolleybus à la taille généreuse: Des restaurants complètement automatisés: Des commerces où on…
-

Le dessin des façades dans un bâtiment isolé par l’extérieur.
L’isolation par l’extérieur est le système le plus efficace pour augmenter les performances thermiques d’un bâtiment, et de baisser considérablement sa consommation d’énergie. Une isolation par l’extérieur permet de créer une enveloppe très performante, sans ponts thermiques. Et les projets d’isolation thermiques sont éligibles pour les subventions fédérales et cantonales du Programme Bâtiments. Mais l’isolation…
-

Le coût réel de l’architecture traditionnelle. Épisode 2: Getaz-Miauton
Si on demande à un architecte un projet d’architecture classique, on entend toujours la même justification: l’architecture traditionnelle est trop chère. Il faut justifier les profits du promoteur, et garantir au même temps des loyers abordables, donc… voici un cube en béton! Après le premier épisode, ou vous je vous avais amené chez Lapeyre, aujourd’hui…
-

FUCK MODERNISM! (sur l’importance des avant-toits lors d’une journée de pluie)
Cette semaine, la météo à Genève a été assez pluvieuse, avec pas mal de désagréments pour ceux qui se trouvaient à l’extérieur pendant les orages. Pendant un de ces orages, j’étais à la Jonction, Rue des Deux-Ponts. La Rue des Deux- Ponts est bordé d’édifices anciens, qui ont plein de moulures, avant-toits, balcons, marquises. J’ai…
-

Pour une esthétique des bâtiments hauts: l’École de Chicago.
Un nouveau grand chantier vient de se terminer à Genève, celui de l’Écoquartier Jonction. Et le résultat ne fait pas que des heureux. Un des points les plus critiqués concerne ce bâtiment: un bâtiment rectangulaire, très haut, qui impose sur le skyline de Genève son allure d’immeuble de bureaux des années ’70. Des immeubles de…
-

Le coût réel de l’architecture traditionnelle. Épisode 1: Lapeyre
Si on demande à un architecte un projet d’architecture classique, on entend toujours la même justification: l’architecture traditionnelle est trop chère. Il faut justifier les profits du promoteur, et garantir au même temps des loyers abordables, donc… voici un cube en béton! Pour démentir ces informations, j’ai profité d’une visite chez un de nos fournisseurs…
-

Créer des ornements architecturaux dans un bâtiment isolé par l’extérieur
Vous avez une maison à rénover, des façades à isoler, et vous voulez un résultat qui ait du caractère? Contactez-nous! +41 79 525 71 35 +41 78 638 09 18 Comme tous les ans, je profite du mois de mars pour faire un gros tour à Habitat & Jardin, et découvrir les nouveautés dans le…
-

Des belles architectures à petit prix: dé-moderniser un bâtiment.
Vous avez hérité une maison moderniste, un cube blanc comme on en voit beaucoup à Genève. Ou peut-être vous l’avez achetée il y a quelques années: maintenant tout ce blanc et toute cette simplicité vous ennuie, et vous aimeriez bien donner davantage de caractère à votre maison. Le tout, sans se ruiner. Pas de soucis,…
-

Genève: où sont les architectes?
Ces derniers temps, à Genève, on parle pas mal d’architecture. On se mobilise contre la destruction du patrimoine bâti, on manifeste dans la rue, et on vote dans trois communes (Genève, Bernex et Chêne-Bougeries) pour valider (ou pas) des projets de nouveaux quartiers. Grands absents de ce débat, les architectes. Et pourtant, les architectes auraient…
-

Quelle architecture pour la zone de développement de Genève? Retour sur les années ’80-’90
Dans ma recherche sur une architecture pour la zone de développement de Genève (vous trouverez les épisodes précédents ici, ici, ici et ici), j’ai découvert un point intéressant: l’architecture de la zone de développement n’a pas toujours été mauvaise Bien au contraire, il y avait une période, entre les années ’80 et ’90, où dans…
-

Des belles architectures à petit prix: un exemple à Genève
Dans une des mes balades à travers le canton de Genève, je viens de voir un immeuble qui reprend de manière très précise les concepts que j’avais montré dans mon billet sur les belles architectures à petit prix. Donc, la mauvaise architecture n’est pas une fatalité, et des belles réalisations sont toujours possibles. Vous aimeriez…
-

Une unité de mesure de la laideur urbaine: le corbusier.
Ça fait quelques jours que je discute de la laideur urbaine. L’occasion vient d’une longue discussion (une partie de la discussion est par là) concernant les Vergers à Meyrin, un quartier qui sur papier était promis à un radieux avenir, mais que dans la pratique s’est révélé assez banal et très gris. Afin de chiffrer…
-

Quelle architecture pour la zone de développement de Genève? (retour à Monte Sacro)
Dans les derniers billets sur l’architecture pour la zone de développement, j’avais esquissé trois critères pour créer une architecture intéressante et compatible avec les PLQ déjà approuvés. Les trois critères étaient: une division de la façade en trois bandes horizontales: piédestal, fût et chapiteau. Une symétrie à plusieurs axes: plus le bâtiment est grand, plus…
-

Peinture des façades: donnez du caractère à votre maison!
Vous voulez peindre votre façade, et donner du caractère à votre maison? contactez-nous au 079 525 71 35! Après un premier essai sur la peinture des façades, j’ai voulu aller plus loin sur le sujet. J’ai repris mon projet pour des villas contiguës à Genève (projet assez typique de ce qui se construit aujourd’hui), et j’ai…
-

Des belles architectures à petit prix: Peindre les façades pour donner du caractère à la maison.
Après avoir décrit ce qu’on peut faire avec de la peinture, un changement de fenêtres et une réfection de toiture, j’ai envie de vous montrer un cas pratique. J’ai donc repris la maison ordinaire qui avait au début de l’article (image sortie de notre projet non réalisé pour des villas jumelées à Genève)… Et j’ai…
-

Des belles architectures à petit prix: Peinture + Fenêtres + Toiture
Vous vivez dans une maison tout à fait ordinaire, et vous aimeriez lui donner un peu de caractère?Ou peut-être vous vivez dans un immeuble moderne, et vous aimeriez qu’il ressemble à autre chose que à une barre HLM de banlieue? Avec un peu de peinture, un changement de fenêtres et une réfection de toiture, Nous…
-

Concevoir un bâtiment classiciste ou moderniste avec un croquis basique.
Hier soir, nous avons eu une discussion intéressante avec une personne qui était intéressée par notre proposition d’architecture pour la zone de développement de Genève. pour mieux expliquer le concept, nous avons fait quelques croquis. Les éléments caractérisants d’un bâtiment moderniste sont: l’absence de décorations en façade (ce qui n’empêche pas d’utiliser parfois des matériaux…
-

Des architectures classiques en béton armé.
Depuis nos derniers billets sur les architectures pour la zone de développement (vous les trouverez là, là et là) et après avoir rencontré en vrai les administrateurs de « contre l’enlaidissement de Genève » je cherche des exemples d’architectures intéressantes construites ces dernières années. Et j’ai remarqué une tendance intéressante: des architectures classiques en béton armé. Voici…
-

Construire à petit prix des bâtiments de qualité.
Il y a quelques jours, j’ai découvert la page « contre l’enlaidissement de Genève » et l’autre concours de l’immobilier, deux initiatives qui offrent un regard très critique sur les constructions genevoises de ces derniers années. Si je partage leur avis négatif concernant certaines réalisations de ces dernières années, je suis toutefois de l’avis que c’est possible,…
-

Quelle architecture pour la zone de développement à Genève?
Il y a quelques temps, je vous avais parlé de la réforme du PLQ de 2013. Un des buts de cette réforme était de produire des quartiers plus agréables à vivre que ceux construits ces dernières années. Le processus est engagé, les premières réalisations me semblent concluantes, mais on devra attendre encore beaucoup de temps…
-

Construire une maison écologique en Suisse Romande.
Vous voulez construire votre nouvelle maison? Contactez-nous au 079 525 71 35! Une des choses que nous aimons faire est de construire des maisons écologiques. Notre approche à l’écologie est global, et comprend à la fois le choix d’un lieu en adéquation au projet de vie des futurs habitants, d’un plan capable de s’adapter aux différentes…
-

Densification de la zone villas à Genève: Recréer le vieux Carouge
En ce moment, je participe à beaucoup de discussions sur la densification. La population suisse continue à augmenter, il y a une envie de garder les sols agricoles, donc la seule solution semble être la densification des zones moins denses, notamment des quartiers suburbains construits entre 1950 et 1990. Jusqu’à là, cela semble un raisonnement…
-

Le Pueblo Mascarat à Altéa
Cet été j’ai fait un tour en Espagne. Et comme un architecte en vacances est toujours un architecte, j’ai profité de mon voyage pour explorer un peu l’architecture du lieu. Pour commencer, voici le Pueblo Mascarat à Altéa. Le pueblo Mascarat est un quartier construit à 5-6 km du centre-ville de Altéa, et constitué principalement de…
-

Immeuble de 4 appartements à St-Gingolph (Valais): rénovation et agrandissement.
Aujourd’hui je continue avec un projet en cours, la rénovation et l’agrandissement d’un immeuble à St-Gingolph. Le programme comprend: Deux commerces au rez-de-chaussée Deux appartements au premier étage Un appartement au deuxième étage, avec terrasse et entrée de plain-pied un appartement au troisième étage, avec terrasse. Pour commencer, voici l’état avant travaux. L’ensemble en transformation comprend: le…
-

Genève: La reforme du PLQ de 2013
Après l’histoire du PLQ des Semailles, dont j’avais parlé dans mon dernier billet, l’instrument du PLQ a fait l’objet en 2013 d’une profonde réflexion par les autorités cantonales genevoises, réflexion qui a fait émerger un certain nombre d’éléments: Les lois qui règlent la construction à Genève sont plus complexes que dans les autres cantons suisses. Dans le canton…
