Vous voulez peindre votre façade, et donner du caractère à votre maison? contactez-nous au 079 525 71 35!
Après un premier essai sur la peinture des façades, j’ai voulu aller plus loin sur le sujet. J’ai repris mon projet pour des villas contiguës à Genève (projet assez typique de ce qui se construit aujourd’hui), et j’ai fait quelques simulations de couleurs.

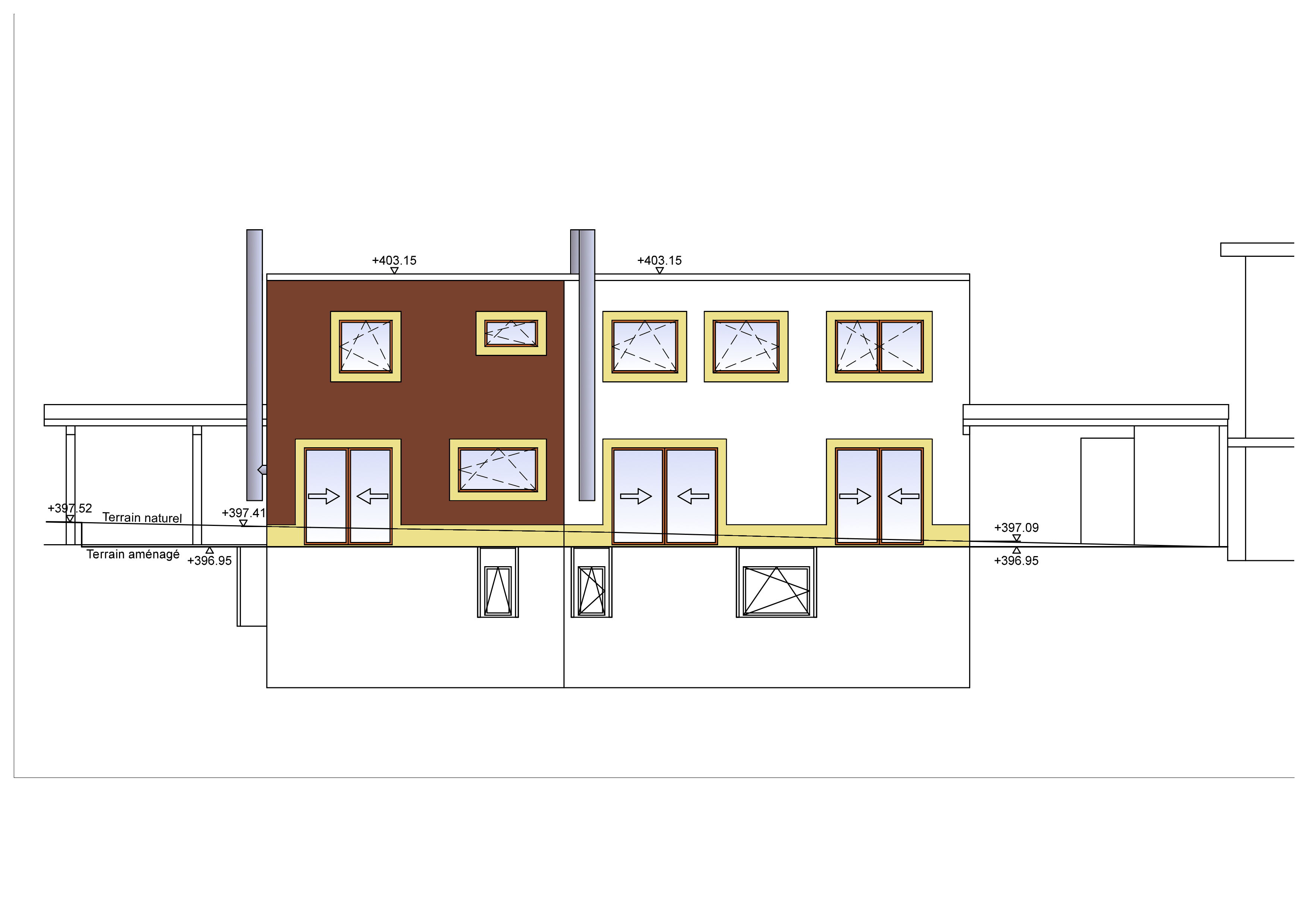
Pour commencer, reprenons le schéma du billet précédent, avec les cadres de fenêtres.

Laissons les cadres de fenêtres blancs, et peignons les maisons avec des couleurs chauds: du jaune, de l’orange et du brun. Le résultat rappelle les architectures de la Méditerranée.



Une autre possibilité est de laisser blanc le fonds, et de peindre les cadres de fenêtres en une couleur foncée. Le résultat rappelle l’architecture du Valais.


Ici, une combinaison des deux, avec des couleurs chauds et des encadrements foncés.

Pour les deux variantes qui suivent, j’ai utilisé des encadrements en jaune. Le résultat rappelle l’architecture de Neuchâtel.


Et pour terminer, deux variantes qui introduisent une tonalité bleue.


Et en vidéo, ça donne cela:
Vous voulez peindre votre maison et lui donner une nouvelle jeunesse? Contactez-nous!


Laisser un commentaire