Une des maisons les plus demandées est la maison Nordique.
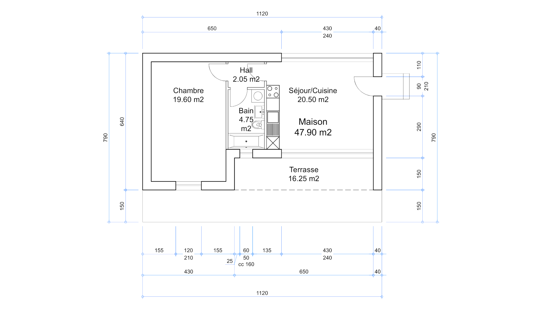
Récemment, on m’a demandé la version avec terrasse de cette même maison.
La voici.

Voici les façades:

Et voici quelques idées des finitions:





Le prix comprend la fourniture, la pose, les raccordements, le permis de construire et le suivi du chantier de la maison.
D’autres maisons de la même taille (70 à 120 m2) sont également disponibles. Pour plus d’informations, contactez-nous au 079 525 71 35.


Laisser un commentaire