Ces dernière semaines, nous avons mis à jour notre projet type pour le canton de Genève. Voici le résultat.
Plan sous-sol:
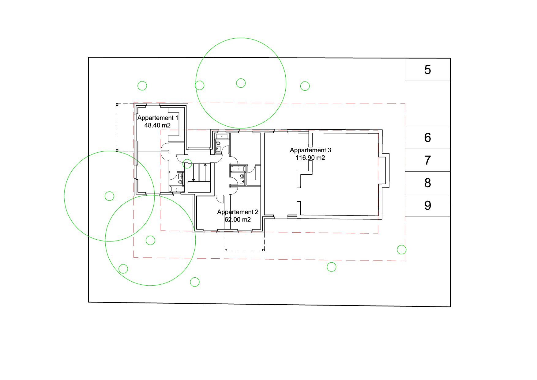
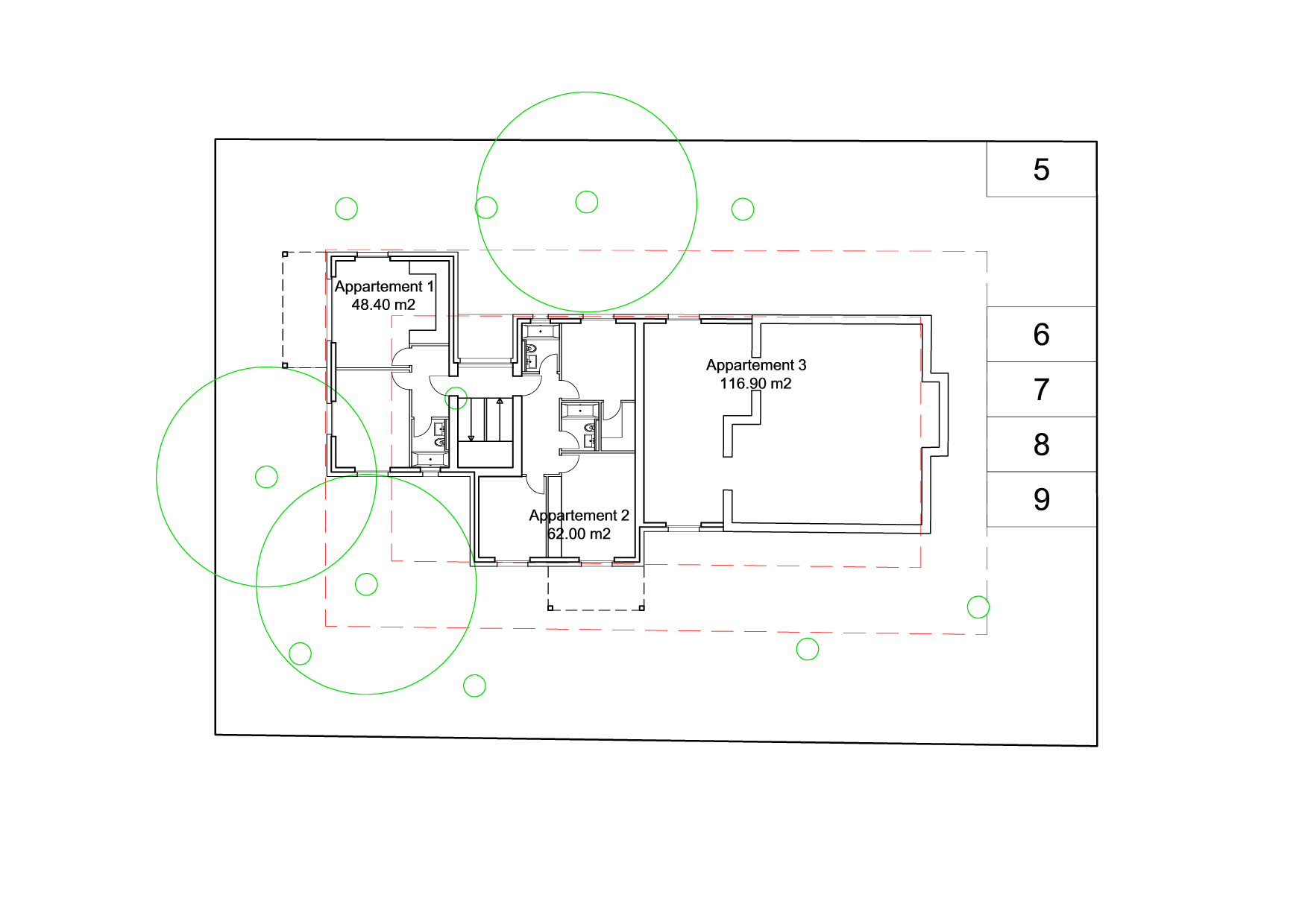
Plan rez-de-chaussée:
Plan étage:
Vues aériennes:
Perspectives:
Nous sommes en train de lancer un projet de ce type aux Trois-Chêne, avec des appartements en PPE, de 70 m2 environ, à environ 600’000 CHF par appartement.
Nous avons déjà deux personnes intéressées, et il nous manque encore deux personnes pour lancer le projet. Si cela vous intéresse, contactez-nous.













Laisser un commentaire