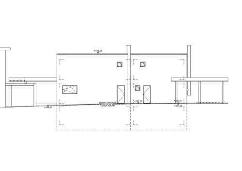
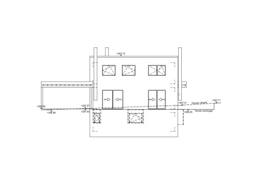
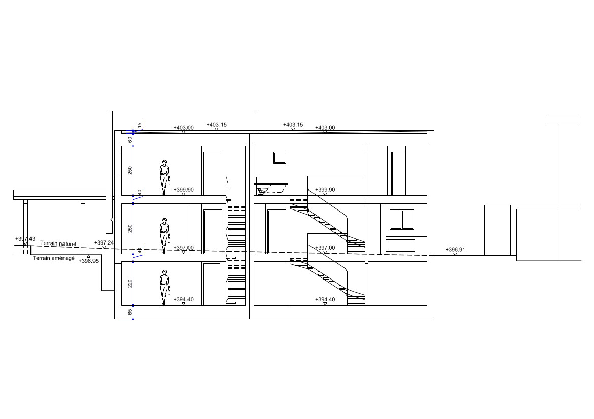
Cette fois-ci, je vous montre projet non réalisé, celui de deux villas mitoyennes dans le canton de Genève. Donc, en lieu et place des photos, ici il y aura des dessins.
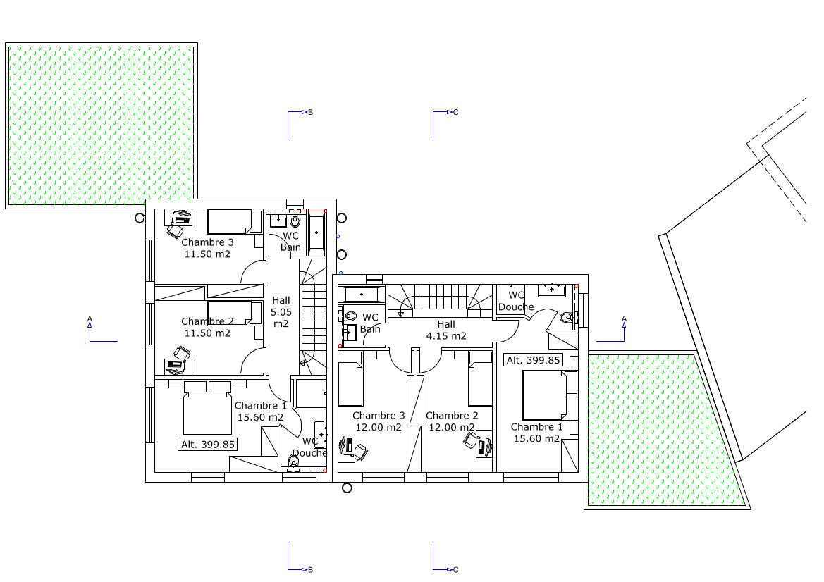
Donc, voici les plans, du sous-sol à la toiture:
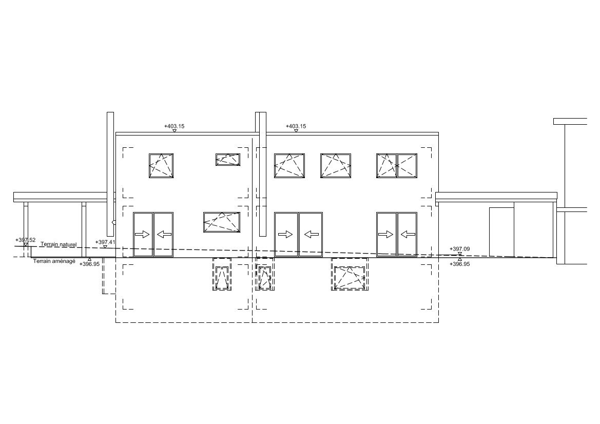
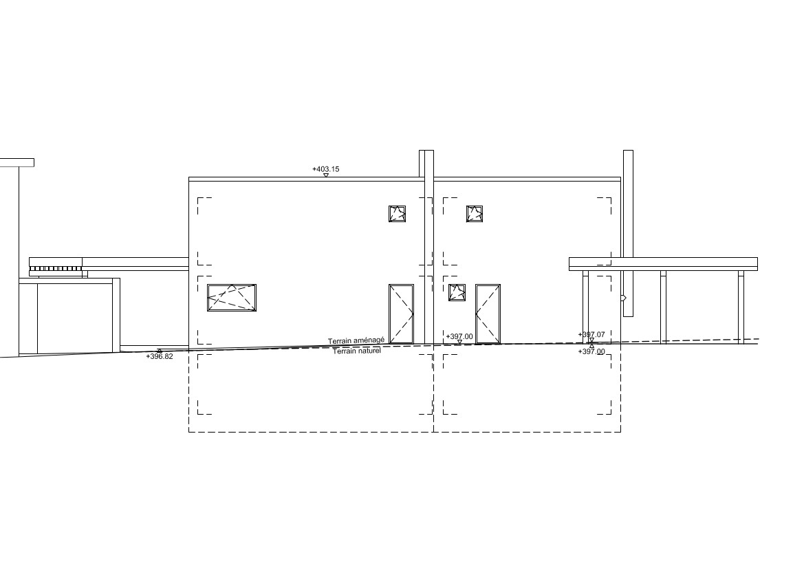
Puis, on continue avec les façades:
Pour terminer avec la coupe.











Laisser un commentaire